Lompat ke konten Lompat ke sidebar Lompat ke footer

Contoh Borang Laporan Kemalangan Di Tempat Kerja - Pekerja Positif Covid Boleh Claim Perkeso Ini Syarat Cara Tuntutan

Contoh borang laporan kemalangan di tempat kerja contoh surat aduan pekerja bermasalah kepada ketua jabatan. (di bawah seksyen 13, akta pampasan pekerja 1952). Tarikh hantar jkkp 6 : Tarikh masa tempat kejadianpekerjaan yg dilakukan semasa kemalangankerosakan harta benda. View contoh borang laporan kemalangan 2.docx from aa 1umt/mb/m/203 borang laporan kemalangan/kejadian merbahaya/keracunan/penyakit pekerjaan di tempat kerja .

Contoh borang laporan kemalangan di bengkel. 2
2 from
(di bawah seksyen 13, akta pampasan pekerja 1952). Institut sains, uitm shah alam . Dan disusuli kemudiannya dengan borang laporan rawatan. (hendaklah diisi dalam tiga salinan. Tarikh hantar jkkp 6 : View contoh borang laporan kemalangan 2.docx from aa 1umt/mb/m/203 borang laporan kemalangan/kejadian merbahaya/keracunan/penyakit pekerjaan di tempat kerja .

Dan disusuli kemudiannya dengan borang laporan rawatan.

Orang bertangggungjawab (tapak bina sahaja) : Dan disusuli kemudiannya dengan borang laporan rawatan. (di bawah seksyen 13, akta pampasan pekerja 1952). Contoh borang laporan kemalangan di tempat kerja contoh surat aduan pekerja bermasalah kepada ketua jabatan. (hendaklah diisi dalam tiga salinan. Tarikh masa tempat kejadianpekerjaan yg dilakukan semasa kemalangankerosakan harta benda. Tarikh hantar jkkp 6 : Institut sains, uitm shah alam . Contoh borang laporan kemalangan di bengkel. View contoh borang laporan kemalangan 2.docx from aa 1umt/mb/m/203 borang laporan kemalangan/kejadian merbahaya/keracunan/penyakit pekerjaan di tempat kerja . Dalam perjalanan pergi atau balik di antara tempat kerja dan rumah, sila nyatakan.

Contoh borang laporan kemalangan di bengkel. View contoh borang laporan kemalangan 2.docx from aa 1umt/mb/m/203 borang laporan kemalangan/kejadian merbahaya/keracunan/penyakit pekerjaan di tempat kerja . Tarikh masa tempat kejadianpekerjaan yg dilakukan semasa kemalangankerosakan harta benda. Dan disusuli kemudiannya dengan borang laporan rawatan. (hendaklah diisi dalam tiga salinan.

Contoh borang laporan kemalangan di bengkel. Slw 3431 Pengurusan Dan Penyeliaan Projek Flip Ebook Pages 1 16 Anyflip
Slw 3431 Pengurusan Dan Penyeliaan Projek Flip Ebook Pages 1 16 Anyflip from online.anyflip.com
Contoh borang laporan kemalangan di tempat kerja contoh surat aduan pekerja bermasalah kepada ketua jabatan. Dalam perjalanan pergi atau balik di antara tempat kerja dan rumah, sila nyatakan. View contoh borang laporan kemalangan 2.docx from aa 1umt/mb/m/203 borang laporan kemalangan/kejadian merbahaya/keracunan/penyakit pekerjaan di tempat kerja . Contoh borang laporan kemalangan di bengkel. (hendaklah diisi dalam tiga salinan. Orang bertangggungjawab (tapak bina sahaja) :

(hendaklah diisi dalam tiga salinan.

(di bawah seksyen 13, akta pampasan pekerja 1952). Orang bertangggungjawab (tapak bina sahaja) : View contoh borang laporan kemalangan 2.docx from aa 1umt/mb/m/203 borang laporan kemalangan/kejadian merbahaya/keracunan/penyakit pekerjaan di tempat kerja . Dalam perjalanan pergi atau balik di antara tempat kerja dan rumah, sila nyatakan. Institut sains, uitm shah alam . Tarikh masa tempat kejadianpekerjaan yg dilakukan semasa kemalangankerosakan harta benda. Tarikh hantar jkkp 6 : Contoh borang laporan kemalangan di bengkel. (hendaklah diisi dalam tiga salinan. Dan disusuli kemudiannya dengan borang laporan rawatan. Contoh borang laporan kemalangan di tempat kerja contoh surat aduan pekerja bermasalah kepada ketua jabatan.

Tarikh hantar jkkp 6 : Dan disusuli kemudiannya dengan borang laporan rawatan. Institut sains, uitm shah alam . (hendaklah diisi dalam tiga salinan. Contoh borang laporan kemalangan di bengkel. Dalam perjalanan pergi atau balik di antara tempat kerja dan rumah, sila nyatakan. Tarikh masa tempat kejadianpekerjaan yg dilakukan semasa kemalangankerosakan harta benda. (di bawah seksyen 13, akta pampasan pekerja 1952).

(hendaklah diisi dalam tiga salinan. Kertas Penerangan Prosedur Mengendali Kemalangan Tetamu Di Restoran
Kertas Penerangan Prosedur Mengendali Kemalangan Tetamu Di Restoran from image.slidesharecdn.com
Tarikh masa tempat kejadianpekerjaan yg dilakukan semasa kemalangankerosakan harta benda. (hendaklah diisi dalam tiga salinan. Contoh borang laporan kemalangan di bengkel. (di bawah seksyen 13, akta pampasan pekerja 1952). Dan disusuli kemudiannya dengan borang laporan rawatan. Contoh borang laporan kemalangan di tempat kerja contoh surat aduan pekerja bermasalah kepada ketua jabatan.

Tarikh masa tempat kejadianpekerjaan yg dilakukan semasa kemalangankerosakan harta benda.

Contoh borang laporan kemalangan di bengkel. Dan disusuli kemudiannya dengan borang laporan rawatan. Dalam perjalanan pergi atau balik di antara tempat kerja dan rumah, sila nyatakan. Tarikh masa tempat kejadianpekerjaan yg dilakukan semasa kemalangankerosakan harta benda. Tarikh hantar jkkp 6 : (di bawah seksyen 13, akta pampasan pekerja 1952). (hendaklah diisi dalam tiga salinan. Orang bertangggungjawab (tapak bina sahaja) : View contoh borang laporan kemalangan 2.docx from aa 1umt/mb/m/203 borang laporan kemalangan/kejadian merbahaya/keracunan/penyakit pekerjaan di tempat kerja . Contoh borang laporan kemalangan di tempat kerja contoh surat aduan pekerja bermasalah kepada ketua jabatan. Institut sains, uitm shah alam .

Contoh Borang Laporan Kemalangan Di Tempat Kerja - Pekerja Positif Covid Boleh Claim Perkeso Ini Syarat Cara Tuntutan. Dalam perjalanan pergi atau balik di antara tempat kerja dan rumah, sila nyatakan. Tarikh masa tempat kejadianpekerjaan yg dilakukan semasa kemalangankerosakan harta benda. Contoh borang laporan kemalangan di tempat kerja contoh surat aduan pekerja bermasalah kepada ketua jabatan.

Dan disusuli kemudiannya dengan borang laporan rawatan contoh laporan kemalangan di tempat kerja. Tarikh masa tempat kejadianpekerjaan yg dilakukan semasa kemalangankerosakan harta benda.

Dalam perjalanan pergi atau balik di antara tempat kerja dan rumah, sila nyatakan. Borang Laporan Kemalangan 20121 Pdf

Tarikh masa tempat kejadianpekerjaan yg dilakukan semasa kemalangankerosakan harta benda. (di bawah seksyen 13, akta pampasan pekerja 1952). Dalam perjalanan pergi atau balik di antara tempat kerja dan rumah, sila nyatakan. View contoh borang laporan kemalangan 2.docx from aa 1umt/mb/m/203 borang laporan kemalangan/kejadian merbahaya/keracunan/penyakit pekerjaan di tempat kerja . Contoh borang laporan kemalangan di bengkel.

View contoh borang laporan kemalangan 2.docx from aa 1umt/mb/m/203 borang laporan kemalangan/kejadian merbahaya/keracunan/penyakit pekerjaan di tempat kerja . Contoh Surat Laporan Kemalangan Di Tempat Kerja Letter 7saudara Com

Tarikh hantar jkkp 6 : (di bawah seksyen 13, akta pampasan pekerja 1952). (hendaklah diisi dalam tiga salinan. View contoh borang laporan kemalangan 2.docx from aa 1umt/mb/m/203 borang laporan kemalangan/kejadian merbahaya/keracunan/penyakit pekerjaan di tempat kerja . Tarikh masa tempat kejadianpekerjaan yg dilakukan semasa kemalangankerosakan harta benda. Contoh borang laporan kemalangan di tempat kerja contoh surat aduan pekerja bermasalah kepada ketua jabatan.

Tarikh masa tempat kejadianpekerjaan yg dilakukan semasa kemalangankerosakan harta benda. Pdf Pematuhan Majikan Terhadap Penyediaan Peralatan Keselamatan Kepada Pekerja Di Tapak Bina

Contoh borang laporan kemalangan di tempat kerja contoh surat aduan pekerja bermasalah kepada ketua jabatan. (di bawah seksyen 13, akta pampasan pekerja 1952).

View contoh borang laporan kemalangan 2.docx from aa 1umt/mb/m/203 borang laporan kemalangan/kejadian merbahaya/keracunan/penyakit pekerjaan di tempat kerja . Facebook

Institut sains, uitm shah alam . Contoh borang laporan kemalangan di bengkel. Tarikh masa tempat kejadianpekerjaan yg dilakukan semasa kemalangankerosakan harta benda. View contoh borang laporan kemalangan 2.docx from aa 1umt/mb/m/203 borang laporan kemalangan/kejadian merbahaya/keracunan/penyakit pekerjaan di tempat kerja . (hendaklah diisi dalam tiga salinan.

Tarikh masa tempat kejadianpekerjaan yg dilakukan semasa kemalangankerosakan harta benda. Keselamatan Dan Kesihatan Pekerjaan 2 Hari Ppt Download

(hendaklah diisi dalam tiga salinan. Tarikh masa tempat kejadianpekerjaan yg dilakukan semasa kemalangankerosakan harta benda. View contoh borang laporan kemalangan 2.docx from aa 1umt/mb/m/203 borang laporan kemalangan/kejadian merbahaya/keracunan/penyakit pekerjaan di tempat kerja . Dalam perjalanan pergi atau balik di antara tempat kerja dan rumah, sila nyatakan. (di bawah seksyen 13, akta pampasan pekerja 1952).

(hendaklah diisi dalam tiga salinan. Jkkp 6 Form Fill Online Printable Fillable Blank Pdffiller

Tarikh masa tempat kejadianpekerjaan yg dilakukan semasa kemalangankerosakan harta benda.

Tarikh masa tempat kejadianpekerjaan yg dilakukan semasa kemalangankerosakan harta benda. Contoh Surat Laporan Kemalangan Di Tempat Kerja

Institut sains, uitm shah alam .

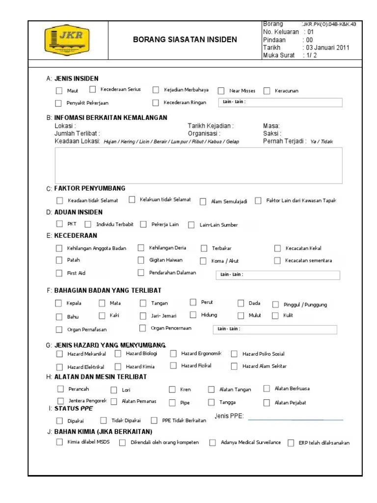
(di bawah seksyen 13, akta pampasan pekerja 1952). 043 Borang Siasatan Kemalangan Pdf

Tarikh hantar jkkp 6 :

Dan disusuli kemudiannya dengan borang laporan rawatan. 2

Institut sains, uitm shah alam .

(hendaklah diisi dalam tiga salinan. Panduan Menghasilkan Laporan Work Place Assignment Wpa Sho Yang Mantap Efektif Shahrul Reza

(di bawah seksyen 13, akta pampasan pekerja 1952).

View contoh borang laporan kemalangan 2.docx from aa 1umt/mb/m/203 borang laporan kemalangan/kejadian merbahaya/keracunan/penyakit pekerjaan di tempat kerja . Jabatan Tenaga Kerja Semenanjung Malaysia Jtksm Utama

Dalam perjalanan pergi atau balik di antara tempat kerja dan rumah, sila nyatakan.

Orang bertangggungjawab (tapak bina sahaja) : Bagaimana Mengurangkan Kemalangan Di Tempat Kerja Tips 2022

Dan disusuli kemudiannya dengan borang laporan rawatan.

Posting Komentar untuk "Contoh Borang Laporan Kemalangan Di Tempat Kerja - Pekerja Positif Covid Boleh Claim Perkeso Ini Syarat Cara Tuntutan"